2701 Liberty DriveWoodland, CA 95776




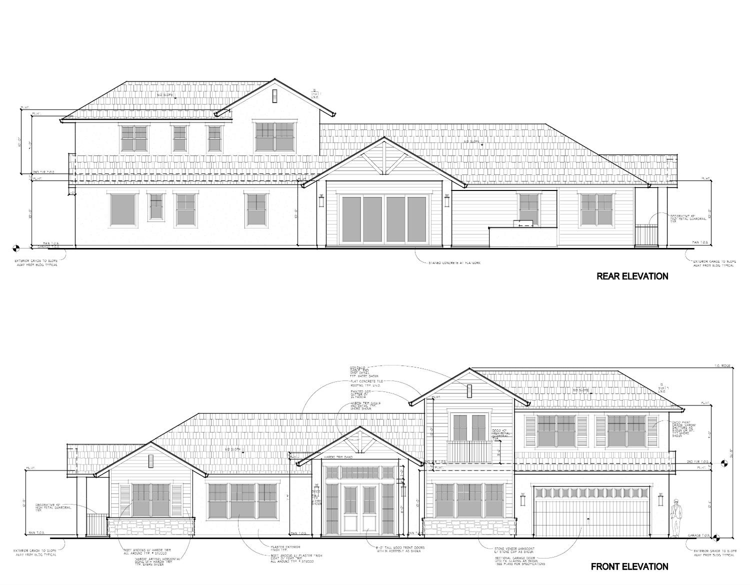
Opportunity Knocks at 2701 Liberty Drive! Are you a custom home builder or a family ready to plant roots in the charming City of Woodland? This highly desirable & exceptional corner lot located in the Heritage Park subdivision of custom homes in Spring Lake lot provides the ideal foundation for a premium custom build. Best of all, this lot comes with City approved plans designed as a 4 bedroom layout, with one room strategically positioned to function as a Home Office or 4th Bedroom, gourmet kitchen with butlers pantry and an attached 1 bedroom ADU apartment over the garage. The Liberty Drive address places you in a well-established, friendly custom home community known for its tree-lined streets and accessibility. Living here means enjoying short commutes and being close to all the local conveniences that make Woodland a great place to live. A corner lot is a rare find, offering design advantages that maximize privacy, yard space, and street presence. Details at a glance: Type: Residential Corner Lot Address: 2701 Liberty Dr (AKA 2109 Promenade Drive), Woodland, CA Why Buy: Exceptional visibility and build flexibility. Seize this chance to create lasting value in a fantastic location.
| 23 hours ago | Listing updated with changes from the MLS® | |
| 23 hours ago | Listing first seen on site |
All measurements and all calculations of the area are approximate. Information provided by Seller/Other sources, not verified by Broker. All interested persons should independently verify the accuracy of information. Provided properties may or may not be listed by the office/agent presenting the information. Data maintained by MetroList® may not reflect all real estate activity in the market. All real estate content on this site is subject to the Federal Fair Housing Act of 1968, as amended, which makes it illegal to advertise any preference, limitation or discrimination because of race, color, religion, sex, handicap, family status or national origin or an intention to make any such preference, limitation or discrimination. Terms of Use
Last checked 2025-12-11 11:00 AM PST

Did you know? You can invite friends and family to your search. They can join your search, rate and discuss listings with you.