9996 Spyglass CircleAuburn, CA 95602




Mortgage Calculator
Monthly Payment (Est.)
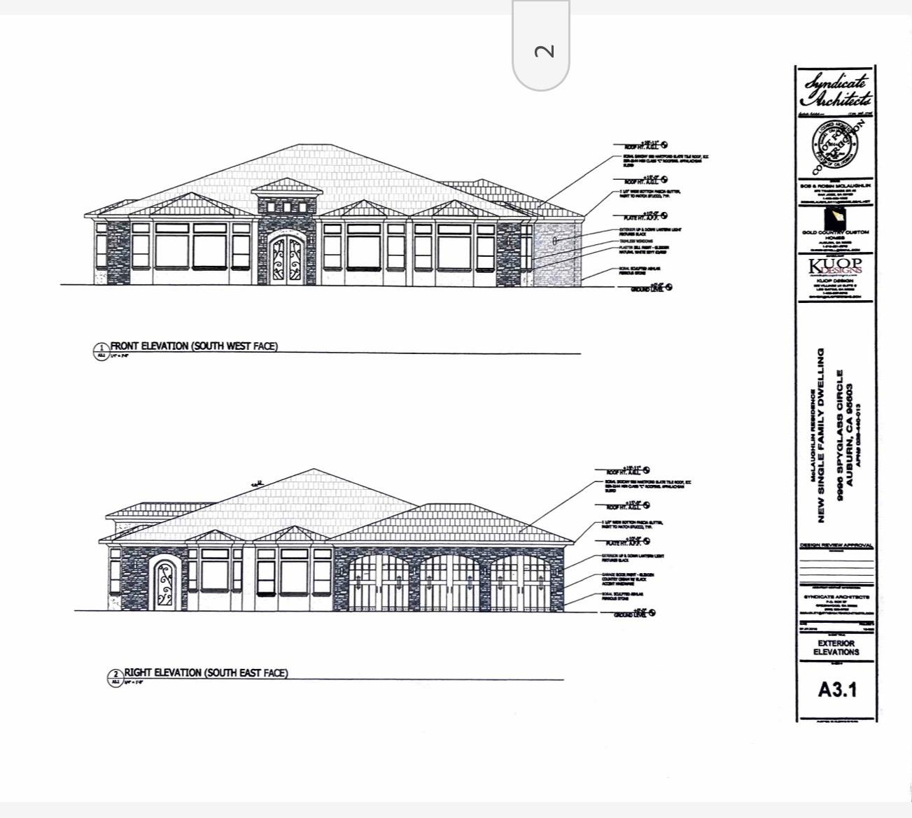
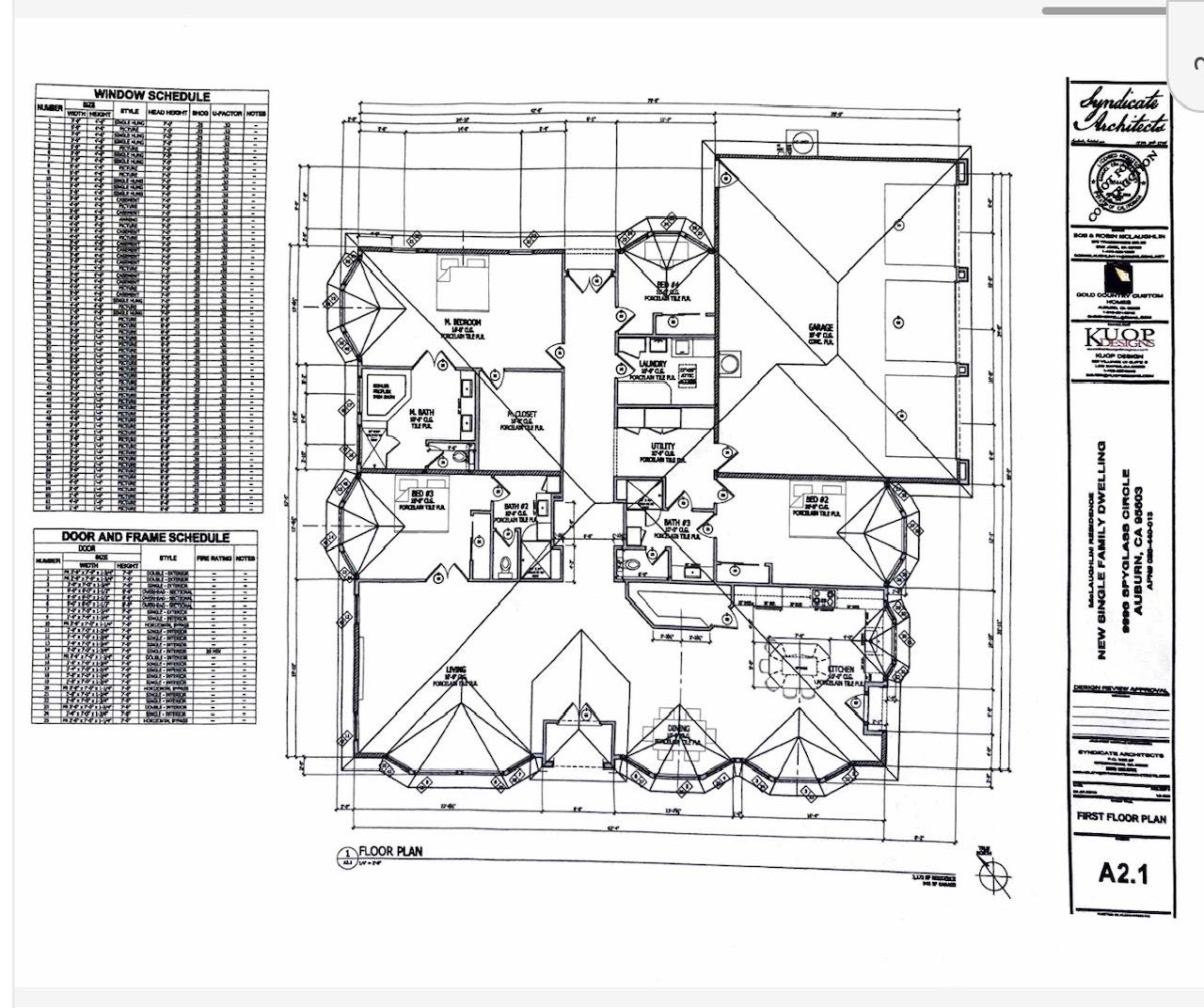
$1,483Gorgeous 3/4 acre corner lot in the desirable Auburn Valley Estates, offering breathtaking views of the rolling Sierra Foothills. This prime homesite comes fully equipped with all utilities at the property, including electricity, public water, and sewer, no well or septic required. Included with the purchase are thoughtfully designed architectural plans for a 3,172 sq ft single-family home (single story), complete with a spacious 945 sq ft garage. The plans have already received HOA approval, along with Placer County planning approval. A geoengineering report and grading permit are also in place, making this property truly ready for development. This exceptional lot presents a rare opportunity to bring your custom dream home to life in a stunning and well established community.
| 3 days ago | Listing updated with changes from the MLS® | |
| 3 days ago | Listing first seen on site |
All measurements and all calculations of the area are approximate. Information provided by Seller/Other sources, not verified by Broker. All interested persons should independently verify the accuracy of information. Provided properties may or may not be listed by the office/agent presenting the information. Data maintained by MetroList® may not reflect all real estate activity in the market. All real estate content on this site is subject to the Federal Fair Housing Act of 1968, as amended, which makes it illegal to advertise any preference, limitation or discrimination because of race, color, religion, sex, handicap, family status or national origin or an intention to make any such preference, limitation or discrimination. Terms of Use
Last checked 2026-04-27 06:33 AM PDT
